Riprendono il primo luglio i lavori di restauro di Palazzo Lucatelli a Trapani. La riqualificazione dello storico edificio, nel cuore della città, ha subito una battuta d’arresto a luglio 2023.
Ecco il perché della variante
Durante i lavori, infatti, sono emerse diverse criticità che hanno reso necessaria una perizia di variante. In particolare, è stata riscontrata la presenza di amianto in alcune aree del cantiere e sono state individuate delle categorie di lavori mancanti nel progetto esecutivo.
Il Ministero dei Beni Culturali ha richiesto anche alcune modifiche per rendere l’area antistante all’edificio funzionale all’accoglienza del pubblico e adatta a svolgere le attività culturali e di comunicazione previste nel progetto.
La variazione al progetto esecutivo ha richiesto una spesa di circa 350 mila euro extra rispetto ai 2 milioni di euro finanziati dal Ministero per i Beni e le Attività Culturali e dal Ministero delle Infrastrutture e Trasporti per trasformare il palazzo in un moderno centro culturale e di comunicazione, senza tuttavia snaturarne il valore storico e architettonico.

Acciaio zincato al posto del legno
“I lavori avranno inizio il primo luglio e dovranno essere eseguiti entro il 2024”, assicura l’assessore Guaiana. Si tratta di interventi di restauro conservativo, di manutenzione ordinaria e straordinaria e di consolidamento strutturale come il recupero di volte e solai.
La variante prevede anche alcune modifiche ai materiali e valorizzazione degli ambienti, come la sostituzione delle antiche piastrelle di ceramica con il recupero delle pavimentazioni in marmo e mattoni di cemento e gli infissi in legno di pino di Svezia con infissi in Douglas al primo e secondo piano e infissi in acciaio zincato al piano terra.
.jpg)
Come sarà il Palazzo Lucatelli
Il Palazzo Lucatelli, completamente restaurato e adeguato alle normative sismiche, sarà restituito alla città di Trapani come un moderno centro culturale e di comunicazione, pronto ad ospitare eventi, mostre, conferenze e attività per tutte le età. Un luogo dove la storia e la cultura si incontrano, per offrire ai cittadini e ai turisti un'esperienza unica e coinvolgente.
La storia del finanziamento
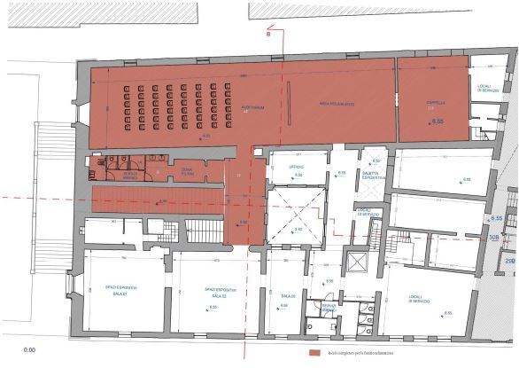
Il progetto originale, redatto dall'ingegnere Stefano Nola, prevedeva la creazione di una sala conferenze, una biblioteca per bambini, un auditorium e spazi espositivi, il tutto collegato da disimpegni, locali di servizio e un'area ristoro centrale.
I lavori di manutenzione straordinaria e rifunzionalizzazione del Palazzo Lucatelli sono stati realizzati grazie ad un finanziamento della Soprintendenza dei Beni culturali per un ammontare di 2 milioni di euro.
Nel 2019 l’assemblea dei soci del Luglio Musicale Trapanese, proprietario dell’immobile al 72%, il resto è del Comune di Trapani, ha deliberato la cessione all’amministrazione Tranchida del progetto esecutivo per la manutenzione straordinaria ed il consolidamento strutturale del Palazzo.
Contestuale e soprattutto fondamentale per il nuovo tentativo di recupero dell’immobile, l’atto di donazione del progetto. È stato redatto dall’ingegnere Stefano Nola, che ha accettato di consegnarlo al Luglio. L’obiettivo del doppio passaggio, da Nola al Luglio, dal Luglio al Comune è di poter utilizzare proprio i 2 milioni di euro messi a disposizione da “Ales”, che prima era “Arcus”, società che fanno riferimento al Ministero dei Beni Culturali.